スーパーやホームセンター、ドラッグストア、公園などにも近い
恵まれた住環境の庭付き戸建物件。
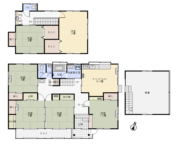
車庫兼物置の他、クローゼットや押入等収納力たっぷり、
更にうれしい消雪井戸・エアコン4台・ホットマン3台付です。
| 所在地 | 山形県鶴岡市丸岡字町の内291番地16 | |||
|---|---|---|---|---|
| 価格 | 1,100万円 | 学区 | 櫛引西小・櫛引中 | |
| 地目 | 宅地(公簿) | 取引態様 | 専任媒介 |
|---|---|---|---|
| 土地面積 | 383.32㎡ (115.95坪) |
建物面積 | 49.65㎡(49.65坪) |
| 都市計画 | 市街化調整区域 | 築年月日 | H4(1992)年6月7日 |
| 用途地域 | 無指定 | 構造 | 木造瓦葺2階建 |
| 建ぺい率・容積率 | 70%・200% | 種類/間取り | 居宅/6DK |
| 接面道路 | 東側公道6.7m | 交通 | ヤマザワくしびき店バス停より徒歩約4分 |
| 仲介手数料 | 429,000円(税込) | 引渡し | 相談 |
| 水道 | 公営上水道 | 排水 | 公共下水道 |
| 電気 | 東北電力(60A) | ガス | LPガス(集中管理) |
| 給湯 | 石油式給湯器 | 駐車場 | 車庫2台分・他1~2台可 |
| 備考 | ※車庫(29.74㎡)未登記 ※現状有姿販売・契約不適合責任免責 トイレ2ヵ所・石油式給湯器・エアコン4基・ホットマン3台・車庫兼物置・風除室・テラス・外物置・消雪用井戸有 |
||











































